Eski Buca Cezaevi arazisi için yeni imar planı askıda
Yıllardır atıl durumda tutulan eski Buca Cezaevi arazisi için hazırlanan yeni imar planı askıya çıkarıldı. Konut ve ticaret yapılaşmasına izin veren plan, yeşil alan vurgusuna rağmen kentte “rant” tartışmalarını yeniden gündeme getirdi.
- Ege Postası
- 04.02.2026 - 12:26
- Güncelleme: 04.02.2026 - 12:41
EGE POSTASI - İzmir’in merkezine yakın konumda yer almasına rağmen yıllardır atıl durumda bulunan eski Buca Cezaevi arazisine ilişkin hazırlanan yeni imar düzenlemesi askı sürecine girdi. İller Bankası ile İzmir Büyükşehir Belediyesi bürokratlarının uzlaşısıyla hazırlanan 1/5000 ölçekli Nazım İmar Planı değişikliği kamuoyunun görüşüne açıldı.
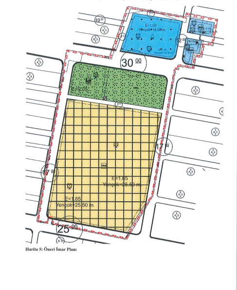
Plan değişikliği, Buca ilçesi İnönü Mahallesi sınırları içinde yer alan eski cezaevi alanını kapsıyor. Çalışma kapsamında 673 ada 12, 101, 166, 171, 172, 173, 175, 177, 190, 202, 213 ve 222 parsellerin yanı sıra 7229 ada 27 ve 28 parseller ile 7240 ada 1, 2, 3, 31 ve 32 parseller için yeni kullanım kararları getirildi.
EMSAL DEĞERLERİ BELİRLENDİ
Plan açıklama raporuna göre alanın bir bölümü “Ticaret + Konut Alanı” olarak E:1,80 emsal değeriyle, diğer bölümü ise “Konut Alanı” olarak E:1,50 emsal değeriyle planlandı. Düzenleme kapsamında yaklaşık 40 bin 200 metrekare faydalı alan, toplamda ise yaklaşık 72 bin metrekare inşaat alanı öngörüldü.


YEŞİL ALAN MİKTARI ARTIRILDI
Raporda, planlama alanının güney kesiminde 16 bin 560 metrekarelik yeşil alan ayrıldığı bilgisine yer verildi. Bu alanın, Çevre, Şehircilik ve İklim Değişikliği Bakanlığı tarafından daha önce onaylanan ancak mahkeme kararıyla iptal edilen plandaki yeşil alan miktarının üzerinde olduğu vurgulandı.
EĞİTİM VE BELEDİYE HİZMET ALANI KORUNDU
Daha önce iptal edilen planlarda yer alan eğitim alanı ile belediye hizmet alanı kararlarının da yeni planlama çalışmasında muhafaza edildiği belirtildi. Söz konusu alanların, planlama sahasının kuzey bölümünde yer aldığı ifade edildi.
İTİRAZ SÜRECİ BAŞLADI
Eski Buca Cezaevi alanına ilişkin hazırlanan 1/5000 ölçekli Nazım İmar Planı değişikliği, askı süresi boyunca vatandaşların ve ilgili kurumların itirazlarına açık olacak. Planlamaya ilişkin teknik ayrıntıların tamamı plan açıklama raporunda yer aldı.

Yorum Yazın